全国服务热线:028-88855955(24小时)

当前位置:网站首页 > 租售中心 > 莱普敦中心
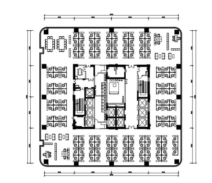
莱普敦中心
  • 楼盘基本信息:

  • 面       积: 1600m2
  • 价       格: 13800元/平
  • 所在区域: 高新区
  • 所属商圈: 世纪城
  • 地      址: 高新区-世纪城-吉泰路588号
  • 所在楼层: 第6层 / 总38层
  • 物业级别: 甲级写字楼
  • 联系电话:
028-88855955

楼盘概况

标准层层高 4.5 米。更多价格优惠请来电咨询热线:028-88855955

楼盘照片

莱普敦中心 莱普敦中心

地理位置

人才招聘| 广告投放| 网站简介| 联系我们| 公司简介| 友情链接| 站内地图

Copyright © 2003-2024 蜀ICP备2020032848号-1