全国服务热线:028-88855955(24小时)

当前位置:网站首页 > 写字楼楼盘 > 力宝大厦
  • 力宝大厦
  • 力宝大厦
  • 力宝大厦
  • 力宝大厦
  • 力宝大厦
  • 力宝大厦
  • 力宝大厦
  • 力宝大厦
力宝大厦
  • 地址:科华北路62号
  • 租赁价格:100 元/平/月
  • 物业费:16元/平/月 元/平/月
  • 总建筑面积:71785 平方米
  • 标准层面积:600 平方米
  • 物业公司:世邦魏理仕
  • 开发商:四川盛唐实业

  • 租售热线:
028-88855955

 力宝大厦位于科华北路62号,其南端直通世纪城国际会展中心,北部衔接西南电脑产业区,据双流国际机场仅15分钟车程,毗邻美国领事馆、德国领事馆、日本会馆、泰国领事馆、四川大学等中心区域,各种银行、金融机构星罗密布;周边五星级宾馆林立:锦江宾馆、香格里拉、万豪、豪生、凯宾斯基、万达索菲特;高档百货环绕:仁和春天、百联天府;银杏南亭、欧洲房子、公馆菜等高档餐饮娱乐场所更是为入驻大厦的企业提供了极为丰富的配套。     
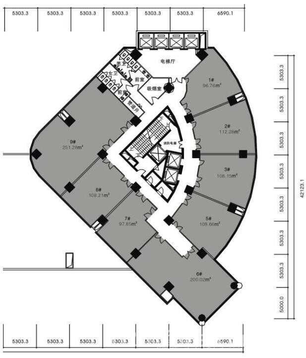
    力宝大厦为全数字智能化纯商务写字楼,总建筑面积:71905.71平方米,建筑高度98.8米,地下2层/地上23层,地下建筑面积8881.29平方米,地上建筑面积63204.42平方米,建筑结构为钢筋混凝土框架剪力墙筒体结构。地上23层,定位为配套性商业和写字间,裙楼1层到3层主要为配套性商业层,大厦4层至23层为商务写字间,主要是提供给发展良好的中大型企业,11层至23层为整层销售楼层,主要提供给世界500强、国际国内知名企业,大厦13层为企业提供4个多功能国际会议厅,拥有4+1同声传译系统,带视频会议功能。    
        
    本项目总占地面积6473.15平方米,总建筑面积72252.28平方米,采用全框架筒体墙结构,建筑总高:115米,建筑共25层,地下2层,地上23层,共计318个车位;     
    大厦功能定位:1F-3F:建筑面积10451.88

公交线路
电梯情况
24部瑞士迅达高速电梯,2.5米/秒,平均候梯时间小于35秒其中8部客梯、2部消防电梯、4部货运电梯
通讯系统
1万兆主干光纤,水平6类线,1000兆到桌面,美国MOLEX综合布线系统。中国电信、中国网通、中国铁
空调系统
著名进口品牌中央空调,365天24小时自主调节,自动开关,新风量达到50立米/人以上。
供电系统
10KV高压专用电缆由市政电网接入,CLARK原装进口发电机组作后备电源,10分钟内转换。市政自来水
安保系统
消防系统
进口品牌火灾报警系统,自动烟感/温感探头,自动喷淋,消防紧急广播。
写字楼地图地位系统-成都写字楼地图

人才招聘| 广告投放| 网站简介| 联系我们| 公司简介| 友情链接| 站内地图

Copyright © 2003-2024 蜀ICP备2020032848号-1